Contact your local branch for assistance

Close

PROPERTY VALUE

Get an accurate property valuation, with just a few details…

GET A VALUATION

Arrange a Viewing

 

Horseman Side, Brentwood

CM14

Asking Price

£850,000

a

At a glance…

  • A site of approximately 1.6 acres (STLS)
  • Planning permission for three new 3 bedroom dwellings
  • Planning ref: 24/00250/FUL
  • Can be purchased alongside a Grade II Listed barn conversion with its own private garden and access.
1.64 Acres | Land | Freehold | Council Tax Band | EPC | Ref: LNH250031
1.64 Acres
Land
Freehold
Council Tax Band
EPC

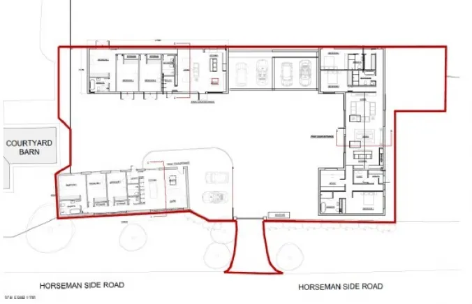
A site of approximately 1.6 acres(STLS) with planning permission for three new three bedroom dwellings. This can be purchased alongside a Grade II Listed barn conversion with its own private garden and access.

Description
Development plot
An exciting opportunity to purchase a site with planning consent for the conversion of the existing outbuilding to a 3 bedroom, single storey dwelling, along with the demolition of the existing two pole barns and stable block, and construction of two further 3 bedroom single storey dwellings, with the associated access, car parking and landscaping.

Location
The plot stands in an attractive stretch of countryside, in the commuter belt, to the northwest of Brentwood. The nearby centres of Brentwood and Shenfield are within easy reach, and both offer a range of shopping, educational and recreational facilities. The mainline railway station at Shenfield provides a direct service to either Stratford or to Liverpool Street and is on the Elizabeth Line. By road, the A12 is just under 5 miles away which interconnects at this junction with the M25. South Weald Country Park is nearby and provides excellent opportunities for walking, fishing and horse riding. There are several golf clubs within easy reach, notably Bentley and Thorndon Park. The area is well served with a range of private and state educational facilities including Brentwood School, St. Peters C of E primary school at South Weald, and at Chelmsford, King Edward Grammar School, Chelmsford County High School For Girls and New Hall School. Brentwood: 4.3 miles (rail service to Liverpool Street), M25 (Junction 28): 4.4 miles, Shenfield (Elizabeth line): 5.7 miles (rail service to Liverpool Street from 28 minutes), M11: 13 miles.

Planning
The site was granted planning permission for the conversion of the existing outbuilding to a 3 bedroom single storey dwelling, along with the demolition of two pole barns and stable block and construction of two further 3 bedroom single storey dwellings. Full planning information is available online via Brentwood Council, Planning ref: 24/00250/FUL

Terms of offer
The site is being sold on an unconditional basis with a guide price of £850,000.

Beresfords would seek to be instructed as the agent on all new homes being sold.

Please contact Beresfords Land Department for further information or to arrange a viewing.

a

At a glance…

  • A site of approximately 1.6 acres (STLS)
  • Planning permission for three new 3 bedroom dwellings
  • Planning ref: 24/00250/FUL
  • Can be purchased alongside a Grade II Listed barn conversion with its own private garden and access.
LNH250031 01
LNH250031 30

VIEW THIS PROPERTY

01245 921 951

Land & New Homes Branch

VIEW THIS PROPERTY

01245 921 951

Land & New Homes Branch

Map View Map
Show Street View Street
Schools, Transport etc Schools
Utilities, Rights & Restrictions Utilities
Utility suppliers
Broadband Ask Agent
Telephone Ask Agent
Electricity Ask Agent
Gas Yes
Water Ask Agent
Sewerage Ask Agent
Heating Ask Agent
Main Heating Ask Agent
Accessibility
Unsuitable for wheelchairs Ask Agent
Level access Ask Agent
Lift access Ask Agent
Ramped access Ask Agent
Wetroom Ask Agent
Wide doorways Ask Agent
Step free access Ask Agent
Level access shower Ask Agent
Lateral living Ask Agent
Rights & Restrictions
Listed No
Are there any restrictions with the property? No
Any easements, servitudes or wayleaves? No
Public Rights of Way No
Flood & Erosion Risk
Flooded in last 5 years Ask Agent
Source of flood Ask Agent
Brentwood

AREA GUIDE

What’s it like to live in Brentwood?

Living in Brentwood…

VALUE YOUR PROPERTY

Book a free valuation for your property
with our experts

Book a Valuation...

We use cookies to enhance your experience of this site by saving your preferences.
Please let us know you agree to the use of cookies…

OK